Судебные разбирательства жителей ЖК Астаны с депутатом-застройщиком: история о краже этажа

Жители жилого комплекса "Жайлау" в Астане уже несколько лет судятся с застройщиком, депутатом Азаматом Орынбасаровым, из-за незаконного строительства десяти этажей вместо запланированных девяти, что привело к серьезным нарушениям и угрозам для безопасности здания. В ходе судебных разбирательств выяснилось, что технический этаж был переоформлен под нежилые помещения, что лишило собственников части общедомового имущества и вызвало новые судебные иски.
Судебные разбирательства жителей ЖК Астаны с депутатом-застройщиком: история о краже этажа Астане

Конфликт жителей ЖК "Жайлау" с застройщиком

Жители жилого комплекса "Жайлау" в Астане уже несколько лет ведут судебные разбирательства с жилищно-строительным кооперативом "Бастау Холдинг", председателем которого является депутат маслихата города Астаны Азамат Орынбасаров. Основная суть конфликта заключается в том, что вместо запланированных девяти этажей в доме был построен десятый, который должен был быть техническим, но фактически стал жилым.

ЖК "Жайлау", вид сверхуФото: ©️ Автор

История строительства

Жилой комплекс "Жайлау" был сдан в эксплуатацию в 2020 году. По проекту, на техническом этаже должны были размещаться инженерные коммуникации, однако фактически там построены полноценные квартиры. Это вызвало недовольство среди жильцов, которые приобрели квартиры в девятиэтажном доме.

Эскиз ЖК "Жайлау"Эскизы предоставлены жителями ЖК "Жайлау"

Судебные разбирательства

По словам председателя ОСИ Дмитрия Немолчева, застройщик отказался предоставлять проектно-сметную документацию, что привело к необходимости обращения в суд. В результате судебных разбирательств выяснилось, что технический этаж был переоформлен под нежилые помещения, что нарушает права жильцов.

"Квартиры мы покупали в девятиэтажном доме, а когда он был достроен, мы заметили, что этажей 10," — вспоминает Немолчев.

Площадка с тренажёрами во дворе ЖК "Жайлау"Фото: ©️ Автор

Нарушения и последствия

Специалисты госэкспертизы указали на серьезные нарушения, связанные с конструкцией здания. Технический этаж был возведён с высотой потолков в три метра, что увеличивает нагрузку на фундамент и может повлиять на долговечность дома.

"Технический этаж по проекту должен быть 1,9 метра. По факту он возведён как типовой этаж с потолками в три метра," — говорит Немолчев.

Дмитрий Немолчев, председатель ОСИ ЖК "Жайлау"Дмитрий Немолчев, председатель ОСИ ЖК "Жайлау". Фото: ©️ Автор

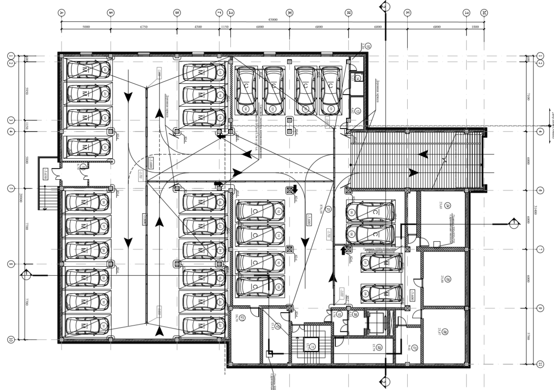
Проблемы с паркингом

Кроме того, застройщик допустил нарушения в проектировании паркинга, что также стало предметом судебных разбирательств. Жители сообщают о некачественном заезде и недостаточном количестве парковочных мест.

Проект паркинга в ЖК "Жайлау"Проект предоставлен Дмитрием Немолчевым

Мнение застройщика

Юрист ЖСК "Бастау Холдинг" Нурмат Нурекеев заявил, что застройщик не согласен с предписаниями и оспаривает их в суде. Он отметил, что на момент проверки все помещения уже имели своих владельцев.

"На момент, когда было вынесено предписание, что в паркинге, что на последнем этаже, везде уже были свои владельцы," — говорит Нурекеев.

ЖК "Жайлау" с лишним этажом - фото сверху Фото: ©️ Автор

Заключение

Ситуация с ЖК "Жайлау" демонстрирует сложные отношения между жильцами и застройщиками, а также необходимость соблюдения проектных норм. Судебные разбирательства продолжаются, и жильцы надеются на восстановление своих прав.

Поделиться:
Все изображения и материалы в публикации получены из открытых источников. Если вы являетесь правообладателем, ознакомьтесь с информацией для правообладателей.
Популярные новости